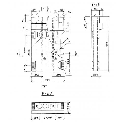
Вентблок-диафрагма 1ВД 20.15.26 предназначен для использования в железобетонных конструкциях. Он обеспечивает надежную защиту от влаги и пыли, а также обеспечивает хорошую звукоизоляцию. Этот элемент используется для создания вентиляционных отверстий в стенах зданий, а также для обеспечения естественной вентиляции помещений.









